
Listed by: Kelly Strohman, Keller Williams Realty NoCo 8303854534
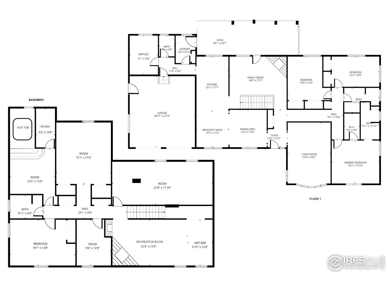
WELCOME HOME!!! Imagine waking up every day to the views of the 15th fairway of Highland Hills Golf Course, sipping your morning coffee on the front porch or from the large window of the breakfast nook area while knowing that your power is being produced by owned solar panels that transfer to you free and clear. Located in one of Greeley’s most established and sought-after neighborhoods, 2438 51st Ave offers an incredible combination of prestige, abundant space, and long-term value with 4,390 finished sqft, 4 beds/4 baths, and a floorplan that has endless possibilities. The main floor primary suite allows for easy one-level living and includes additional bedrooms, an office, laundry room, along with kitchen featuring newer stainless steel appliances, dining and living rooms, plus a family room with a built-in gas fireplace. Meanwhile, the finished basement provides ample space and features a wet bar, a secondary fireplace, hot tub and sauna area, along with generous storage to create flexible options for guests, multigenerational living, or simply spreading out and enjoying the home. Large windows, wood floors, exposed beams, and warm brick details bring character and natural light throughout, while the backyard patio and mature landscaping make it easy to enjoy Colorado evenings. A 2-car attached garage plus a rare detached newer-built one-car garage/workshop with a gas heater allows space for hobbies or projects, and best of all, there is no HOA. The home has been priced to reflect its mostly original finishes, creating a rare opportunity to update and build equity in a premier location while benefiting from owned solar, a transferable one-year home warranty, and a premium roof replacement with Class 4 shingles covered under manufacturer warranty. If you value location, generous space and storage, along with the ability to create your own vision over time, this is the kind of home that simply doesn’t come along often in the Highland Hills neighborhood of Greeley.
Information source: Information and Real Estate Services, LLC. Provided for limited non-commercial use only under IRES Rules. © Copyright IRES. Listing information is provided exclusively for consumers' personal, non-commercial use and may not be used for any purpose other than to identify prospective properties consumers may be interested in purchasing. Information deemed reliable but not guaranteed by the MLS. The offer is made only to Participants of the MLS where the listing is filed. Data last updated on Wednesday, February 11th, 2026 03:45:06 AM.
Data services provided by IDX Broker
| Price: | 515,000 |
| Address: | 2438 51st Ave |
| City: | Greeley |
| County: | Weld |
| State: | Colorado |
| Zip Code: | 80634 |
| Subdivision: | Highland Hills Sub 1st Add |
| MLS: | 1050007 |
| Year Built: | 1976 |
| Square Feet: | 4,390 |
| Acres: | 0.29 |
| Lot Square Feet: | 0.29 acres |
| Bedrooms: | 4 |
| Bathrooms: | 4 |
| Half Bathrooms: | 3 |

